8
$8 Rent
Listed 10 hours ago
5 HYLAND DRIVE
· 0
· 0.0
· 0
· -
Key Facts
Key facts for 5 HYLAND DRIVE
Property Type
Commercial, Warehouse
Parking
Garage: No, 0 parking
MLS #
25025028
Size
-
Basement
-
Listed on
-
Lot size
-
Tax
-
Days on Market
-
Year Built
2001
Maintenance Fee
-
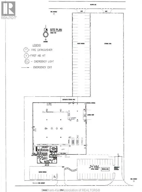
Description
For Lease – Prime Industrial Facility in Blenheim. This outstanding property offers over 38,000 sq. ft. of versatile space, featuring 6,400 sq. ft. of office area and more than 32,000 sq. ft. of shop and warehouse space. Situated on 3.55 acres, the site includes a fully fenced and paved laydown yard..., ideal for secure outdoor storage and heavy vehicle maneuvering. The building boasts 20–24 ft. ceiling heights, 2 truck-level docks, and 4 grade-level doors to ensure efficient operations. With 400-amp electrical service, the facility is well equipped to handle demanding industrial requirements. Conveniently located in the Town of Blenheim, the property provides easy access to Highway 401 and major arterial routes, making it an excellent choice for a wide range of industrial and commercial uses. This is a rare opportunity to lease a high-quality industrial space in a prime Southwestern Ontario location. Seller will sub-divide office space from warehouse area. (id:10452)
Similar Properties (No results)
Listing courtesy of: RE/MAX PREFERRED REALTY LTD.
This REALTOR.ca listing content is owned and licensed by REALTOR® members of The Canadian Real Estate Association.